Расскажите о вашем бизнесе в мобильном приложении Т‑БанкаРасскажите о вашем бизнесе в мобильном приложении Т‑БанкаРазмещение — бесплатноРазмещение — бесплатноПодробнее

Идеи для бизнесаБизнес с нуляМаркетплейсыБухгалтерияЛайфстайлСправочникШаблоны документов
Идеи для бизнесаБизнес с нуляМаркетплейсыБухгалтерияЛайфстайлСправочникШаблоны документов

Начинающие рестораторы уделяют много внимания меню, дизайну зала, привлечению гостей, но забывают о главном — соблюдении законодательных норм СанПиН и ХАССП. Неудивительно, что нарушения часто видны еще на этапе проекта заведения.

Почему нарушения есть уже в проекте. Проектировщики заведений в общепите разбираются в строительных нормах и могут грамотно расставить оборудование с точностью до сантиметра. Но не многие знают, как соблюсти санитарные требования и нормы. Поэтому собственники будущих предприятий приносят проекты на оценку специалистам вроде меня — ниже вы увидите такие примеры.

Зачем на самом деле нужны СанПиНы и ХАССП. Некоторые предприниматели воспринимают требования Роспотребнадзора как обременительные и необходимые лишь для того, чтобы от них отстали. К счастью, есть и другая точка зрения.

Один мой заказчик, получив инструкции, журналы учета и другую документацию ХАССП, с удивлением сказал: «Это именно те стандарты, которые мы давно хотели внедрять!» А ведь именно соблюдение ХАССП и СанПиН позволяет добиваться стабильного качества, когда «бургер одинаково вкусный (и безопасный) в любом городе». KFC, Макдональдс, Burger King и другие игроки стали крупнейшими в общепите как раз благодаря стандартам.

Вот самые популярные ошибки, из‑за которых нарушаются санитарные нормы. Исправьте их, чтобы ваше заведение соответствовало требованиям законодательства.

Ошибка №1. Много сырья вместо полуфабрикатов

Многие рестораторы не представляют себе кухню без огромного количества сырья. Если в меню есть блюда из картофеля, то он должен быть в неочищенным и в мешках, если из яйца — оно обязательно должно быть сырым.

Чем плохо для бизнеса. Сырье — основа производства в общепите. Чем больше сырья, тем сложнее технологические процессы и тем больше нужно цехов. Например, для очистки овощей и корнеплодов, разделки мяса, рыбы и птицы нужны отдельные помещения. Отсутствие заготовочного цеха для сырья — это нарушение СанПиН 2.3/2.4‑3590‑20, влекущее штраф от 30 до 50 тыс для ООО.

Отсюда множество потерь:

  • выше расходы. Нужно больше поваров и уборщиц, оборудования, цехов и складских помещений. Выше стоимость аренды. Больше списаний товара из‑за просроченных заготовок;
  • чем больше кухня, тем меньше пространства для гостей;
  • сложные процессы повышают риск ошибок сотрудников и как следствие отравлений;
  • увеличивают время ожидания блюда;
  • сложнее найти поставщиков. Скорее всего, вы не сразу найдете тех, чей товар будет полностью вас устраивать.

Что делать. Если производственная зона небольшая, упростите технологические процессы за счет перехода на полуфабрикаты, где это возможно. Так вы сократите число обязательных цехов и площадь остальных помещений, снизите риск ошибок персонала. Например, для картофельного пюре можно использовать сухую смесь от Knorr и DINNER SERVICE.

Собственников и поваров такое решение может шокировать, однако оно здорово экономит ресурсы и зачастую не снижает вкусовые качества блюд.

В описанном выше кафе с отравлением салатом «Цезарь» поступили так: вместо обычной моркови и картофеля начали заказывать очищенную, соусы с сырым яйцом частично заменили на готовые, а для выпечки начали использовать меланж, пастеризованные белок и желток. Заказчик учел этот опыт и при планировании следующего объекта обратился за консультацией еще на этапе проекта.
Чем заменить натуральный картофель
Картофельные хлопья от одного из производителей, фасовка 15 кг

Ошибка №2. Слишком разнообразное меню

Начинающие рестораторы часто делают меню максимально широким: в нем должны быть первые и вторые блюда, гарниры, салаты, закуски. Однако чем больше меню, тем выше и ассортимент сырья.

Чем плохо для бизнеса. Как и в случае с предыдущей ошибкой, это увеличивает расходы и требует огромного количества ресурсов. Штраф может быть такой же — 30–50 тысяч, только с формулировкой «Ассортимент (меню) производимых блюд не соответствует набору и площади производственных помещений».

Что делать. Оставьте минимальное количество позиций, соответствующих концепции. Так вы существенно снизите издержки, а удачно подобранная концепция поможет привлечь больше гостей.

В Москве недавно открылся паста‑бар — из еды там только пасты. Разнообразие достигнуто за счет добавок, соусов, видов макаронных изделий (перья, фетучини и пр.) и оформления блюд. Кухня и помещение объединены и вместе занимают всего 43 м². При этом гостям не тесно, а на кухне есть все что нужно.

Еще примеры заведений с концепцией «простого продукта»: Пельменная, Супстанция, Суп в стакане.

Кстати, KFC и другие гиганты упрощают свои процессы тем же способом — сначала придумывают концепцию с минимальным меню, а уже потом занимаются разработкой процедур ХАССП.

Проект кухни кафе на небольшой площади
Проект паста‑бара. Хотя помещение довольно маленькое, оборудование размещено эргономично, а нарушений поточности нет
Паста-бар с открытой кухней на маленькой площади
Рендер будущего заведения. Пространство зала использовано так, чтобы посадочных мест было как можно больше, а гостям было комфортно

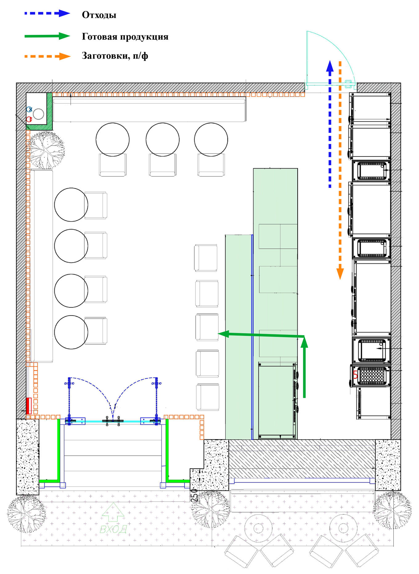
Ошибка №3. Неправильное цеховое деление

При неправильном цеховом делении нарушается поточность: картофель чистят там же, где готовят — в горячем или холодном цехе, грязную посуду заносят через окно выдачи блюд, а сырье — с центрального входа через кухню. Всё это создает угрозу попадания патогенов в готовые блюда — это называется перекрестное загрязнение.

Чем плохо для бизнеса. За нарушение поточности и отсутствие процедур ХАССП штраф до 30 тысяч для ИП и до 300 тысяч для ООО. После проверки придется устранять все нарушения.

Что делать. Сразу спроектировать кухню так, чтобы не нарушать поточность — предусмотреть отдельные зоны, цеха. Ремонт может и не потребоваться: достаточно правильно использовать существующие помещения.

В сетевом ресторане на площади 273 м² разместились цеха, мойка посуды, склады, а еще кабинет директора и раздевалка. Последняя размещена в проходе, через который также заносят сырье от поставщиков — это нарушение.
Проект с нарушениями поточности
В данном случае нарушен обязательный «принцип последовательности и поточности технологических процессов» — есть пересечения потоков, которые могут приводить к перекрестному загрязнению готовых изделий. Сырье пересекается с готовыми продуктами, а грязная посуда — с чистыми блюдами (п. 2.5, 2.7 СанПиН 2.3/2.4.3590‑20). Если поменять местами часть помещений, проблема решится: сырье можно будет заносить через другой вход
Проект без нарушения поточности
Здесь принцип поточности не нарушается. Всё будет соответствовать санитарным нормам, а риски отравления и штрафов при проверках будут минимальны. Не знаю, что из этого заказчик реализовал, но проверку заведение прошло

Ошибка №4. Не позаботились о гигиене сотрудников

В дизайн‑проекте заведения предусмотрены столы, склады, мойки для посуды и сырья, холодильники, даже туалеты. Там готово всё для приготовления вкусной еды — однако не обеспечены условия для соблюдения гигиены теми людьми, которые будут эту еду готовить:

  • нет раковины для рук с полотенцами и моющими средствами. Такая должна быть в каждом цехе;
  • не предусмотрено обеденное место. Обедать на производстве запрещено;
  • нет места для переодевания, а также места хранения спецодежды — хранить ее вместе с уличной одеждой нельзя.

Из‑за этого сотрудникам неудобно соблюдать гигиену, и тогда шансы отравлений кратно повышаются: в еду попадают колиморфные бактерии (БГКП) и сальмонелла. 90% отравлений происходит как раз из‑за несоблюдения личной гигиены.

Чем плохо для бизнеса. Если проверка придет после жалобы на отравление и выявят наличие бактерий, то ООО оштрафуют на 300–600 тысяч и приостановят деятельность до 90 суток, а ИП — на 30–40 тысяч с приостановлением деятельности также до 90 суток.

Кроме того, это повышает текучесть персонала: не все готовы работать там, где не заботятся о нуждах сотрудников.

Что делать. Обеспечить все удобства, чтобы сотрудникам было удобно, а также повесить плакаты о том, как соблюдать гигиенические нормы.

Сотрудники — именно те люди, чей труд поддерживает работу заведения. Важно создать для них условия, в которых им будет легко и удобно работать, обедать, переодеваться, а также мыть руки, не бегая стометровку до ближайшей раковины. Если сотруднику неудобно выполнять санитарные нормы, скорее всего, он и не будет — других дел хватает.

Ошибка №5. Неудобства для окружающих

Многие предприятия размещаются в цокольных этажах жилых домов. Шум и вибрация от вентиляции и холодильников, запахи еды, жар горячего цеха, дым от курящих под окном гостей — всё это создаёт неудобства для жильцов и приводит к жалобам. Огромное количество заведений сталкивается с такой жалобой в первые же месяцы существования.

Чем плохо для бизнеса. Первая же жалоба от жильца приводит к приходу инспекции, которая может выявить и другие нарушения. Штрафы тут небольшие: 1–2 тысячи для ИП и 10‑20 тысяч для ООО, однако в обоих случаях заведение могут прикрыть до 90 суток.

Что делать. На этапе проектирования учесть риски, сделать замеры. Есть два варианта действий:

  1. Еще до подписания договора аренды познакомиться с жильцами дома и узнать, как они отнесутся к такому соседству. Прежде всего идите к соседям через стену и над помещением. Так вы получите объективную информацию, а может, еще и узнаете все что нужно о предыдущем арендаторе.
  2. Узнайте, кто был предыдущим арендатором, и проверьте по ИНН на сайте прокуратуры, были ли плановые или внеплановые проверки надзорных органов — МЧС, прокуратуры, Роспотребнадзора. Также стоит проверить базу судебных решений.
В Москве, в цокольном этаже 12‑этажного жилого дома, открылся китайский ресторан. Собственник обратился за разработкой процедур ХАССП: оказалось, в Роспотребнадзор поступило 14 жалоб на запах и шум. Я предложил сначала замерять уровни запаха и шума, а меры принимать только в случае выявления отклонений. Ведь если всё окажется в пределах нормы, жалобы будут считаться необоснованными.

Однажды ко мне на консультацию обратилась женщина, за стеной квартиры которой сильно шумела и вибрировала морозильная камера: в соседнем помещении располагалась кухня ресторана. Собственники обещали решить вопрос, но не решили, а во время замеров уровня шума и вибрации просто отключали морозилку. К сожалению, предприятие вынудило ее обратиться во все надзорные органы, чтобы решить проблему.

Ошибка №6. Неверное хранение продуктов

Сырье на предприятиях часто хранится прямо на полу, товарное соседство не соблюдено (сырое мясо в одном холодильнике с готовыми продуктами, охлажденные продукты совместно с заморозкой), нет маркировки, помещения для сыпучих продуктов не оборудовано гигрометром. Всё это — примеры нарушений.

Чем плохо для бизнеса. Нарушение требований технических регламентов (ТР ТС) — самое заметное, инспекторы точно его пропустят. Штраф для ИП составит 20–30 тысяч, для ООО — 100–300 тысяч, и в обоих случаях продукцию без маркировки изымут для утилизации.

Что делать. Учесть первые три ошибки и сократить количество складских помещений. Также можно добавить дополнительное оборудование для хранения, разместив его так, чтобы оно не мешало персоналу.

Можно размещать сухие товары и упаковку на полках под потолком. Владельцы ресторана в Петербурге поступили именно так. Также можно сократить места хранения за счет изменения сырья, о котором я рассказал в ошибке №2.
Как разместить сырье на производстве
Боковые полки в проходах служат местом хранения сырья
Онлайн-банк для розничного бизнеса

Предложение от Т‑Банка

Онлайн‑банк для розничного бизнеса
  • Аренда онлайн‑кассы с эквайрингом и QR‑кодом за 0 ₽
  • Поможем зарегистрировать кассу в налоговой
  • Прием платежей по QR‑коду от 0,4%
Подробнее

АО «ТБанк», лицензия №2673

Иван Позняков
Иван Позняков

Поделитесь опытом. Были ли выявлены нарушения на кухне вашего заведения? Как вы использовали этот опыт в будущем?

Комментарии проходят модерацию по правилам редакции


Больше по теме
Новости